ГлавнаяГотовый арендный бизнес — Студенческая ул., 2

Студенческая ул., 2,
50.90 м2

12 000 000 руб.

235756 руб./м2

Следить за ценой


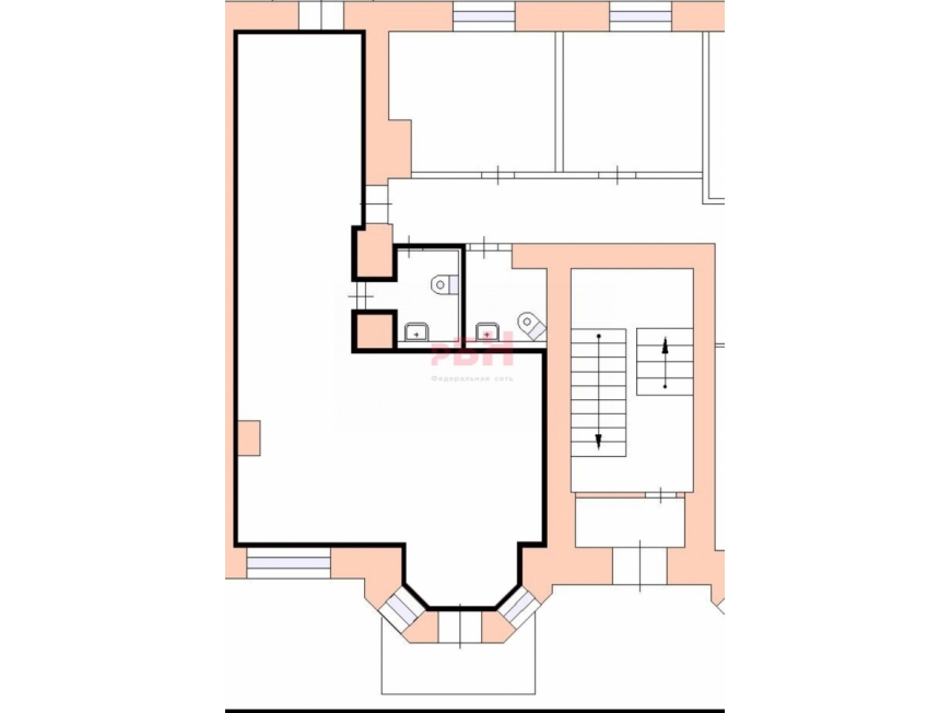
Площадь: 50.90 м2

Окупаемость, лет: 11.8


Предлагается в продажу торговое помещение с федеральным арендатором, 50,9 кв.м.
Без комиссии для покупателей.

- помещение расположено напротив ЖК "Теплые кварталы";
- Высокий автомобильный и пешеходный трафик;
- Хорошая транспортная доступность: напротив остановка общественного транспорта "Студенческая"
- 1 этаж / общее количество этажей- 4;
- Общая площадь 50,9 кв.м;
- Круглосуточный доступ;
- Центральный вход выходит на первую линию ул.Блюхера, есть запасной вход;
- Открытая планировка;
- Косметический ремонт;
- в помещение расположен сан.узел;
- Пол - керамическая плитка, потолок – армстронг, стены – обои под покраску;
- Высота потолков – 3,5 м;
- Мощность 10 Квт;
- Парковка вдоль дома;

Помещение сдано в аренду федеральному арендатору.

Стоимость: 12 000 000 рублей.
Более подробную информацию уточняйте у наших специалистов.
------------------------------------------------------
"Регион Бизнес Недвижимость".
Коммерческая недвижимость .
Без комиссии для покупателей.
Арт. 66906733

Специалист

Перетокина Анна

+7 996 186 65 63

или оставьте ваш номер,
и я перезвоню в течение 5 минут

Согласен с Политикой конфинденциальности и с Политикой оператора в отношении обработки персональных данных

Отправляя заявку вы соглашаетесь на обработку персональных данных

Похожие объекты

Посмотреть другие объявления в этой категории