ГлавнаяКаталог Офис — Малышева ул., 29

Малышева ул., 29, 25.30 м 2

50 600 ₽
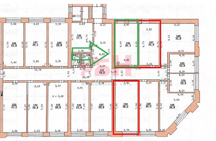
Площадь: 25.30м 2 Этаж 4 из 5
2 000 ₽/м 2
Гортовина Яна
Гортовина Яна
Специалист
или оставьте ваш номер,
и я перезвоню в течение 5 минут
Нажимая на кнопку, вы даете своё согласие на обработку персональных данных и соглашаетесь с политикой конфиденциальности
Предлагается в аренду офисное помещение в центре города с витражными окнами.

Без комиссии для арендаторов.

- Офис расположен на 4 этаже БЦ на Малышева 29 в центре города в 5 минутах от метро.
Рядом с БЦ располагаются рестораны, кафе, гостиницы, магазины, Администрация города.
- Общая площадь 25.3 кв.м., кабинетная планировка;
- Состояние: помещения после ремонта, пол ламинат;
- Доступ в БЦ 27/7;
- Транспортная доступность: рядом остановки общественного транспорта -маршрутное такси, троллейбусы, автобусы, метро;
- парковка платная;

Офис подойдёт под: офис компании, клиентский офис, студию красоты, фотостудию и др.

Стоимость аренды: 50600 руб/мес (2000 руб/м.кв.) ,
Коммунальные платежи не включены в стоимость аренды.

Более подробную информацию уточняйте у наших специалистов.
------------------------------------------------------
"Регион Бизнес Недвижимость".
Коммерческая недвижимость.
Без комиссии для арендаторов.
Арт. 109588284
Расположение

Малышева ул., 29

Похожие объекты

Посмотреть другие объявления в этой категории