ПРЕДЛАГАЕТСЯ в ПРОДАЖУ УНИВЕРСАЛЬНОЕ ПОМЕЩЕНИЕ общей площадью 103,8 кв.м. в центре города
Без комиссии для покупателя.
- расположено в цоколе с окнами в 5- этажном жилом доме в густонаселенном районе в 50 м от улицы Первомайская
- центральный вход с ул. Шарташская/Мичурина
- хорошая транспортная доступность
- наземная парковка
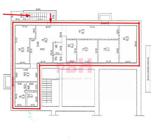
- Общая площадь – 103,8 кв.м
- Высота потолков – 2,15 м
- Мощность – 3 кВт
- продажа от ООО без НДС
- ранее располагался офис охранной компании с оружейной комнатой
-! выкуп 100% доли в ООО с правом выкупа помещения у ДУМИ
Стоимость: 2 100 000 рублей ( выкуп ООО)
Более подробную информацию уточняйте у наших специалистов.
------------------------------------------------- -----
''Регион Бизнес Недвижимость''.
Коммерческая недвижимость.
Без комиссии для покупателей.
Арт. 127631486
Расположение
Шарташская ул., 23