ГлавнаяКаталог Торговая площадь — Ленина проспект, 24/8

Ленина проспект, 24/8, 81.80 м 2

126 790 ₽
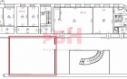
Площадь: 81.80м 2 Этаж 3 из 5
1 550 ₽/м 2
Николаенко Станислав
Николаенко Станислав
Специалист
или оставьте ваш номер,
и я перезвоню в течение 5 минут
Нажимая на кнопку, вы даете своё согласие на обработку персональных данных и соглашаетесь с политикой конфиденциальности
Предлагается в аренду помещение 81,8 кв.м. в самом центре города в ТЦ "КРАСНЫЙ ЛЕОПАРД"

Без комиссии для арендатора

- помещение расположено в торговом центре КРАСНЫЙ ЛЕОПАРД, в самом центре города, на пересечении проспекта Ленина и пешеходной части улицы Вайнера, возле здания Пассажа и администрации г.Екатеринбурга;
- развитая инфраструктура: рядом расположены остановки всех видов общественного транспорта, магазины, кафе, рестораны, деловые и торговые центры (ТЦ Европейский, ТЦ Успенский и др.), огромное количество государственных и коммерческих предприятий, учебные заведения;
- в 2 минутах ходьбы - станция метро "Площадь 1905 г.";
- огромный пешеходный и автомобильный трафик;
- общая площадь 81,8 кв.м, возможно увеличение;
- третий этаж торгового центра;
- вход в торговый центр как с улицы Вайнера, так и с проспекта Ленина;
- высота потолков 2,5 метра;
- есть возможность подвести мокрую точку;

Стоимость аренды: 126 790 руб./мес. (1 550 руб./кв.м.) ,
Коммунальные платежи включены в стоимость аренды.

Более подробную информацию уточняйте у наших специалистов.
------------------------------------------------------
"Регион Бизнес Недвижимость".
Коммерческая недвижимость.
Без комиссии для арендаторов.

Арт. 132616527
Расположение

Ленина проспект, 24/8

Похожие объекты

Посмотреть другие объявления в этой категории